Motif Luxe | Header

Good afternoon. Welcome to 1 Farm Brook Lane, Vernon, CT

$399,900
2
Beds
2.00
Baths
1,454
SqFt
0.00
Acres

Pricing Insight: Originally listed for $399,900, the price has remained unchanged for approximately 12 days. This property has been on the market for approximately 12 days. MLS reports 4 Days on Market (DOM) before it went under contract.

Unit 1 at 1 Farm Brook Lane, Vernon, CT is a 2-bed, 2-bath, 1,454 square foot home built in 2002 , featuring ranch architecture. This residence is part of a 190-unit community. This home is part of a homeowners association, with dues of $350 paid monthly. The HOA fee includes: club house, grounds maintenance, snow removal, and property management. Community amenities include: club house.

This home is within the Vernon school district. Local, with nearby schools including Per Board of Ed.

MLS #: 24146420

Offered Price: $399,900

Residence Type: Condo/Co-Op

Architectural Style: Ranch

Living Area: 1,454 Sq. Ft.

Lot Size: 0.00 Acres

Neighborhood: N/A

County: Tolland

Year Built: 2002

Design & Construction: Frame

Heating: Hot Air

Cooling: Central Air

Garage Spaces: 2

Price per Sq Ft as listed: $275

Estimated Tax: $6,746

Days on Market: 4

Home Automation: Not specified

Energy Features: Programmable Thermostat, Ridge Vents, Storm Doors

Solar Contract: Not specified

Heating Fuel: Natural Gas

Fuel Type: Hot Air

Fuel Tank Location: Not specified

Cooling System: Central Air

Hot Water System: Natural Gas, 40 Gallon Tank

Air Radon Mitigation: Not specified

Water Radon Mitigation: Not specified

Price per square foot: $275 / Sq. Ft.

Tax assessed value: $186,920

Estimated Tax: $6,746

Architectural Style: Ranch

Design & Construction: Frame

Residence Type: Condo/Co-Op

Year Constructed: 2002

Living Area: 1,454 Sq. Ft.

Lot Size: 0.00 Acres

Fuel: Natural Gas

Loading valuation...

Loading automated valuation...

AUTOMATED VALUATION ESTIMATE

Powered by Realtors Property Resource® (RPR)

Note: Computer-generated estimate, not an appraisal.

Understanding This Valuation

The RPR AVM considers:

  • Recent sales of comparable properties
  • Property characteristics and location
  • Market trends in Vernon
  • Statistical modeling algorithms
Local Market Context
Active Listings: 40
Average Price: $334,515
Average DOM: 4 days

Complimentary CMAs, no obligation

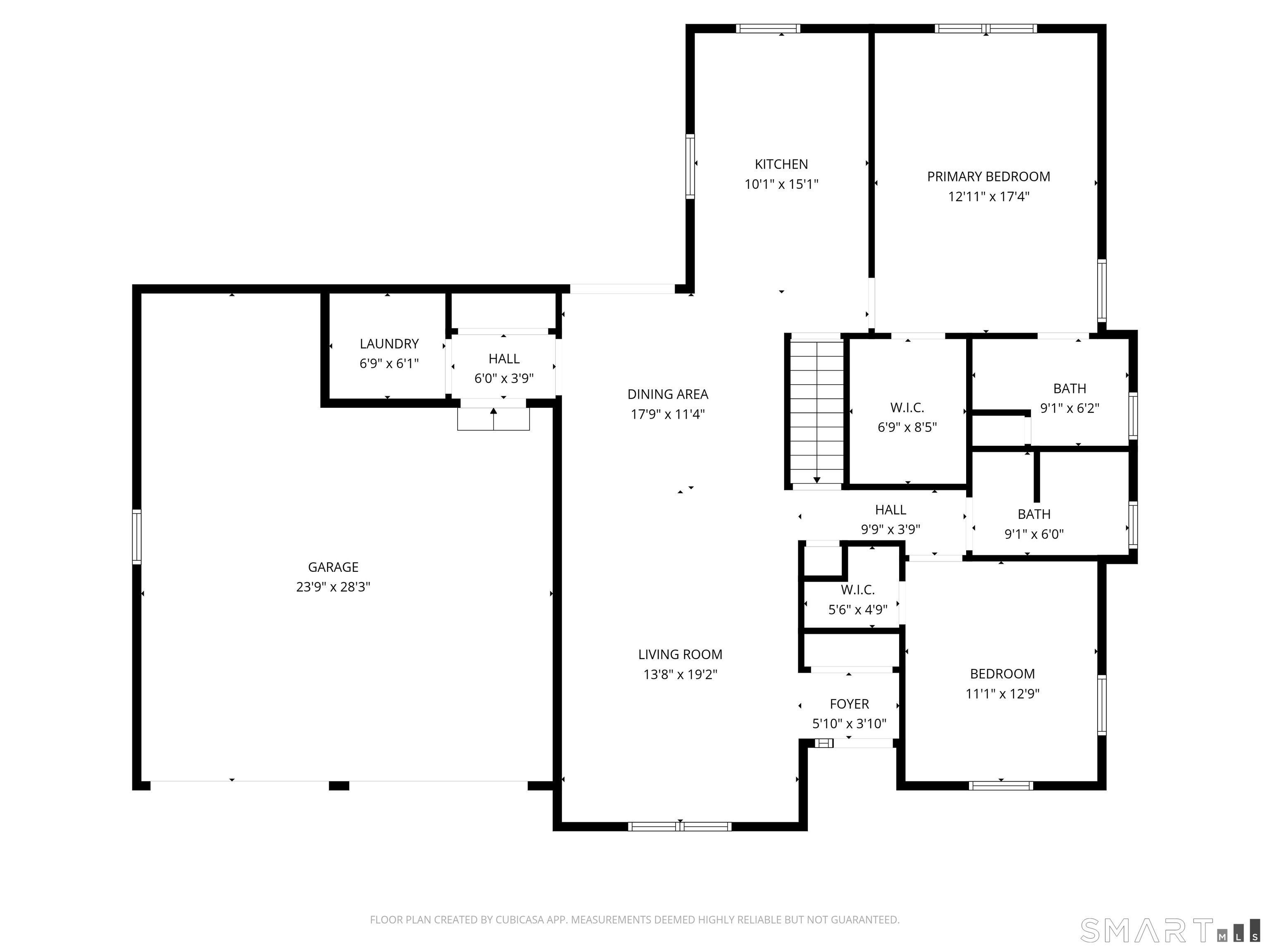
Beautifully maintained 1,454 sq. ft. Ranch in 55+ Quail Hollow complex. This home is move in ready and includes a 2-car garage. This south facing property is drenched in natural light and includes an inviting front porch, and a bright Foyer and Living room. The foyer opens majestically to a cathedral ceiling Living room with immaculate hardwood floors. An open design floor plan includes the adjacent hardwood floor equipped Dining room, abundant recessed lighting and slider access to private rear deck. The eat-in Kitchen is both beautiful and functional. It includes distinctive cabinetry, tiled backsplash, new stainless appliances and granite countertops. The Primary bedroom includes an oversized walk-in closet, new ceiling fan and a nicely appointed private full bath. A second Bedroom, common full bath and an off-kitchen laundry room complete the living space. The lower level is unfinished with walkout and provides plenty of storage and the potential for a large recreational space. Updates include a new porch railing, fresh neutral color interior paint, newer bedroom carpets and ceiling fans. Updated accent lighting throughout. Natural gas and public utilities.

Continue reading ▾

Flood Risk Assessment

Location Analysis:
Inland Vernon location
Water Proximity:
No direct water access
Topography:
Standard terrain
Recommendations:
  • Consult FEMA Flood Maps for accurate zone info
  • Consider flood insurance based on professional assessment
  • Evaluate property drainage during inspection
  • Review local flood history with town officials
Risk Level: Low

Minimal flood risk indicators. Verify with FEMA flood maps.

Walkability Score: calculating…
Motif Lifestyle Score: calculating…

Amenity Access Summary

  • Dining & Café Access: Low to Moderate
  • Daily Services: Limited
  • Recreational Space: Limited Nearby
How These Scores Are Calculated

These scores reflect the proximity and concentration of nearby amenities, measured against a typical town-center environment.

  • Walkability emphasizes access to daily necessities such as groceries, pharmacies, banking, and routine services.
  • Motif Lifestyle emphasizes dining, cafés, parks, and leisure destinations that contribute to neighborhood character and quality of life.

All scores are normalized on a 0–100 scale to allow consistent comparison across different locations.

40

Homes For Sale

$334,515

Average List Price

Mechanicals & Utilities: Hot Air • Natural Gas • Central Air • Public Water Connected water

Exterior Features

Exterior Construction: Vinyl Siding

Garage: Attached Garage (2 car)

Patio/Deck: Porch,Deck,Gutters

Utilities: Water: Public Water Connected

Only motif connects you to a certified
"Local Market Expert"

Agent Photo
George Antonopoulos
Real Estate Advisor
Vernon • Connecticut Shoreline
Licensed Real Estate Agent – Connecticut
Broker Logo

 Verified Motif Advisor
Good afternoon George, I'm interested in
1 Farm Brook Lane, Vernon, Connecticut
By proceeding, you consent to receive calls and texts at the number you provided, and artificial voice, and email, from motif about your inquiry and similar properties. Your personal information will never be sold or given to a 3rd party.
Agent Photo
George Antonopoulos
george@appzentric.com
800-555-0001
Presented by motif • Source: MLS • Listed by: Pam Moriarty • Coldwell Banker Realty • MLS# 24146420