Motif Luxe | Header

Good afternoon. Welcome to 16 Katy Lane, Norwalk, CT

$739,900
4
Beds
2.00
Baths
2,212
SqFt
0.29
Acres

Pricing Insight: Originally listed for $739,900, the price has remained unchanged for approximately 80 days. This property has been on the market for approximately 80 days. MLS reports 70 Days on Market (DOM) before it went under contract.

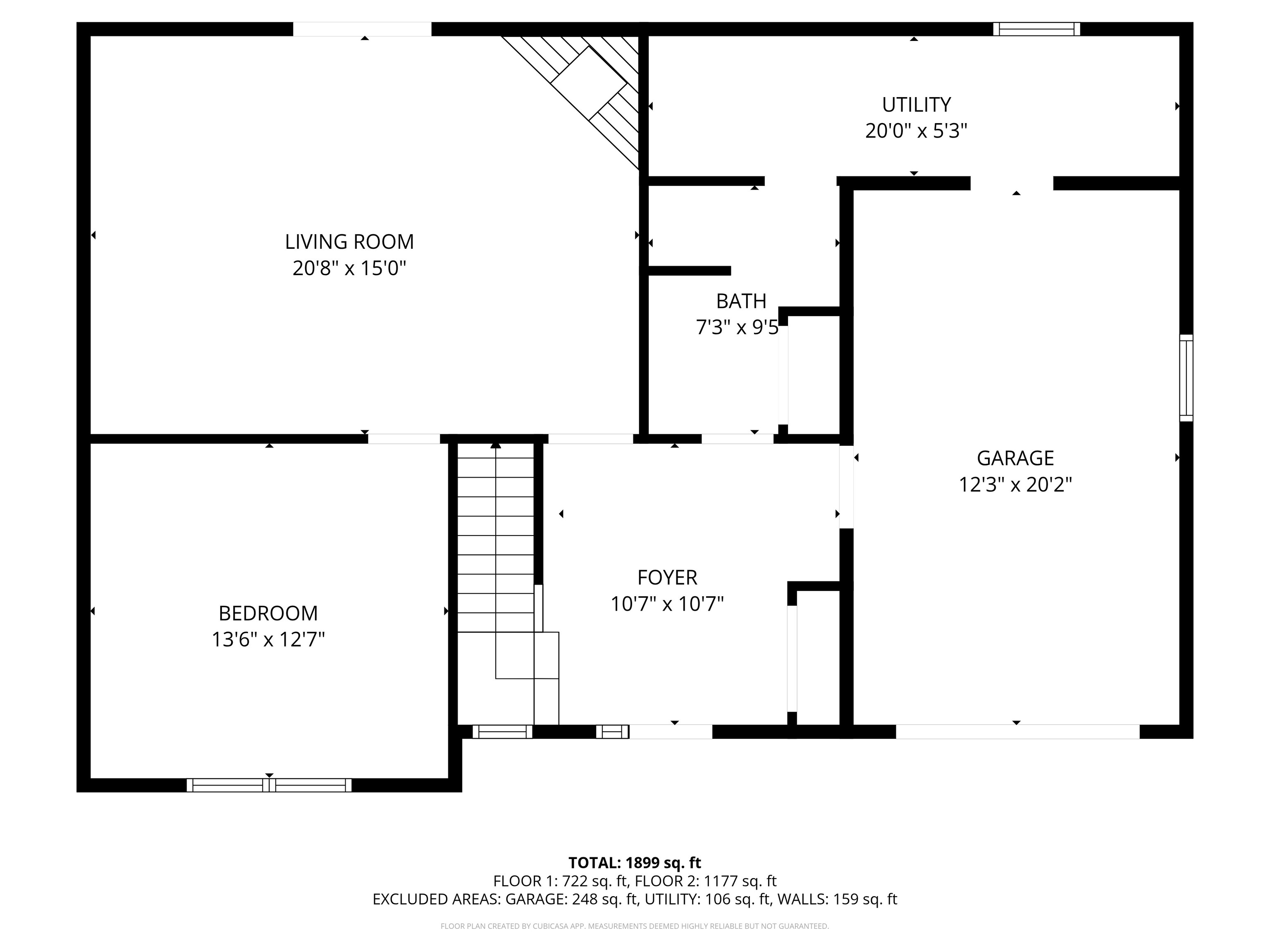
16 Katy Lane, Norwalk, CT is a 4-bed, 2-bath, 2,212 square foot home built in 1977 , featuring ranch architecture.

This home is within the Norwalk school district. Local, with nearby schools including Naramake.

MLS #: 24138769

Offered Price: $739,900

Residence Type: Single Family

Architectural Style: Ranch

Living Area: 2,212 Sq. Ft.

Lot Size: 0.29 Acres

Neighborhood: William Street Area

County: Fairfield

Year Built: 1977

Design & Construction: Frame

Heating: Hot Water

Cooling: Central Air

Garage Spaces: 1

Price per Sq Ft as listed: $334

Estimated Tax: $10,201

Days on Market: 70

$629,900
2 Beds · 2 Baths · 2,188 Sq Ft
32 Heather Lane, Norwalk
$3,750
3 Beds · 1 Baths · 1,358 Sq Ft
14 Hedge Drive, Norwalk

Home Automation: Thermostat(s)

Energy Features: Active Solar, Storm Doors, Thermopane Windows

Solar Contract: Not specified

Heating Fuel: Oil

Fuel Type: Hot Water

Fuel Tank Location: Above Ground

Cooling System: Central Air

Hot Water System: Electric, 30 Gallon Tank

Air Radon Mitigation: Not specified

Water Radon Mitigation: Not specified

Price per square foot: $334 / Sq. Ft.

Tax assessed value: $425,990

Estimated Tax: $10,201

Architectural Style: Ranch

Design & Construction: Frame

Residence Type: Single Family

Year Constructed: 1977

Living Area: 2,212 Sq. Ft.

Lot Size: 0.29 Acres

Fuel: Oil

Loading valuation...

Loading automated valuation...

AUTOMATED VALUATION ESTIMATE

Powered by Realtors Property Resource® (RPR)

Note: Computer-generated estimate, not an appraisal.

Understanding This Valuation

The RPR AVM considers:

  • Recent sales of comparable properties
  • Property characteristics and location
  • Market trends in Norwalk
  • Statistical modeling algorithms
Local Market Context
Active Listings: 226
Average Price: $245,290
Average DOM: 70 days

Complimentary CMAs, no obligation

Attractive and updated 3 BR/2 Bath Raised Ranch with lots of natural light and spacious open floor plan for easy living and entertaining. The combination kitchen, Dining Room, living room, and access to oversized deck and private backyard are perfect for spring, summer and fall indoor/outdoor living. The large Master bedroom and 2 additional bedrooms have plenty of closet space and beautiful hardwood floors. The finished Lower Level with full bath, guest bedroom/office, Family Room with fireplace, and sliders to backyard patio is an ideal space for family get togethers, in-law use, or play area. Convenient location and just a 5 minute drive to I-95, restaurants, shopping, and train station and easy walk to all schools! Many updates including remodeled full bath, kitchen, and refinished hardwood floors. Additional features include 1 car garage, patio, and deck.

Continue reading ▾

Flood Risk Assessment Water Body Detected Nearby

Water Proximity Detected: This property exhibits indicators suggesting nearby or referenced water features
Location Analysis:
Water features noted
Water Proximity:
Near water body
Topography:
Standard terrain • 0.3 acres
Water Indicators Found:
  • Water-related features referenced in listing details
Recommendations:
  • Professional flood assessment advised
  • Based on identified water-related indicators, flood insurance may warrant consideration
  • Consult FEMA Flood Maps for zone verification
  • Evaluate drainage systems
  • Review local flood history
Risk Level: Moderate

Property near water bodies. Consider flood insurance.

Walkability Score: calculating…
Motif Lifestyle Score: calculating…

Amenity Access Summary

  • Dining & Café Access: Low to Moderate
  • Daily Services: Limited
  • Recreational Space: Limited Nearby
How These Scores Are Calculated

These scores reflect the proximity and concentration of nearby amenities, measured against a typical town-center environment.

  • Walkability emphasizes access to daily necessities such as groceries, pharmacies, banking, and routine services.
  • Motif Lifestyle emphasizes dining, cafés, parks, and leisure destinations that contribute to neighborhood character and quality of life.

All scores are normalized on a 0–100 scale to allow consistent comparison across different locations.

226

Homes For Sale

$245,290

Average List Price

Mechanicals & Utilities: Hot Water • Oil • Central Air • Public Water Connected water • 1 fireplaces

Exterior Features

Exterior Construction: Vinyl Siding

Roof Type: Asphalt Shingle

Foundation: Concrete

Garage: Attached Garage,Paved,Off Street Parking (1 car)

Parking: 3 Total

Patio/Deck: Deck,Gutters,Lighting,Patio

Utilities: Water: Public Water Connected

Only motif connects you to a certified
"Local Market Expert"

Agent Photo
Steve Simos
Real Estate Advisor
Norwalk • Connecticut Shoreline
Licensed Real Estate Agent – Connecticut
Broker Logo

 Verified Motif Advisor
Good afternoon Steve, I'm interested in
16 Katy Lane, Norwalk, Connecticut
By proceeding, you consent to receive calls and texts at the number you provided, and artificial voice, and email, from motif about your inquiry and similar properties. Your personal information will never be sold or given to a 3rd party.
Agent Photo
Steve Simos
george@appzentric.com
800-555-0003
Presented by motif • Source: MLS • Listed by: Ellen Balazs • Berkshire Hathaway NE Prop. • MLS# 24138769