Motif Luxe | Header

Good morning. Welcome to 15 Sun Street, Enfield, CT

$324,900
3
Beds
2.00
Baths
1,198
SqFt
0.29
Acres

Pricing Insight: Originally listed for $324,900, the price has remained unchanged for approximately 13 days. This property has been on the market for approximately 13 days. MLS reports 4 Days on Market (DOM) before it went under contract.

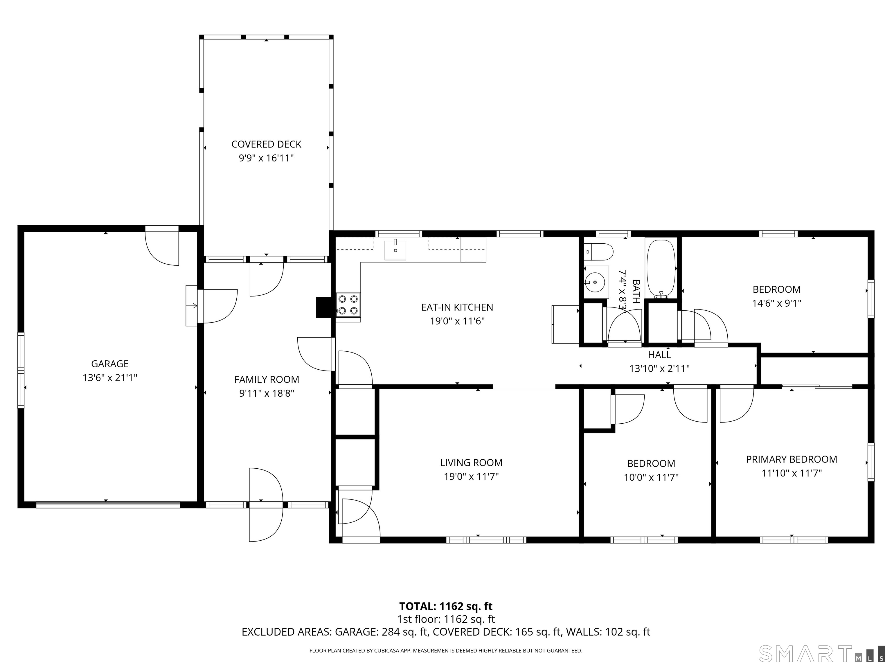
15 Sun Street, Enfield, CT is a 3-bed, 2-bath, 1,198 square foot home built in 1957 , featuring ranch architecture.

This home is within the Enfield school district. Local, with nearby schools including Per Board of Ed.

MLS #: 24147453

Offered Price: $324,900

Residence Type: Single Family

Architectural Style: Ranch

Living Area: 1,198 Sq. Ft.

Lot Size: 0.29 Acres

Neighborhood: N/A

County: Hartford

Year Built: 1957

Design & Construction: Frame

Heating: Hot Water

Cooling: Window Unit

Garage Spaces: 1

Price per Sq Ft as listed: $271

Estimated Tax: $5,068

Days on Market: 4

Home Automation: Not specified

Energy Features: Ridge Vents, Storm Doors, Storm Windows

Solar Contract: Not specified

Heating Fuel: Oil

Fuel Type: Hot Water

Fuel Tank Location: In Basement

Cooling System: Window Unit

Hot Water System: Electric, 40 Gallon Tank

Air Radon Mitigation: Not specified

Water Radon Mitigation: Not specified

Price per square foot: $271 / Sq. Ft.

Tax assessed value: $144,400

Estimated Tax: $5,068

Architectural Style: Ranch

Design & Construction: Frame

Residence Type: Single Family

Year Constructed: 1957

Living Area: 1,198 Sq. Ft.

Lot Size: 0.29 Acres

Fuel: Oil

Loading valuation...

Loading automated valuation...

AUTOMATED VALUATION ESTIMATE

Powered by Realtors Property Resource® (RPR)

Note: Computer-generated estimate, not an appraisal.

Understanding This Valuation

The RPR AVM considers:

  • Recent sales of comparable properties
  • Property characteristics and location
  • Market trends in Enfield
  • Statistical modeling algorithms
Local Market Context
Active Listings: 50
Average Price: $296,518
Average DOM: 4 days

Complimentary CMAs, no obligation

Looking for sunshine? Check out this bright, south-facing Leger Starr ranch! This immaculate and well-maintained 3-bedroom, 2-bath home in the heart of Southwood Acres offers the perfect blend of comfort and style. The open-concept living and dining areas create an inviting space for both entertaining and privacy. Recent updates include a new roof with complete plywood in 2024, upgraded 200-amp service with extended panel, a newer boiler and hot water heater, top of the line Roth stainless steel oil tank, fresh paint throughout, and new flooring in the kitchen and family room. Enjoy the 10x18 covered porch, fully fenced yard with shed, dry basement, and newer appliances-including a commercial-grade washer and dryer. The private backyard is ideal for relaxing, dining outdoors, or hosting gatherings. Conveniently located just minutes from parks, shopping, top-rated schools, and only 5 minutes from I-91, this home perfectly combines comfort, convenience, and community. Don't miss your chance to call 15 Sun Street home!

Continue reading ▾

Flood Risk Assessment Water Body Detected Nearby

Water Proximity Detected: This property exhibits indicators suggesting nearby or referenced water features
Location Analysis:
Water features noted
Water Proximity:
Near water body
Topography:
Standard terrain • 0.3 acres
Water Indicators Found:
  • Water-related features referenced in listing details
Recommendations:
  • Professional flood assessment advised
  • Based on identified water-related indicators, flood insurance may warrant consideration
  • Consult FEMA Flood Maps for zone verification
  • Evaluate drainage systems
  • Review local flood history
Risk Level: Moderate

Property near water bodies. Consider flood insurance.

Walkability Score: calculating…
Motif Lifestyle Score: calculating…

Amenity Access Summary

  • Dining & Café Access: Low to Moderate
  • Daily Services: Limited
  • Recreational Space: Limited Nearby
How These Scores Are Calculated

These scores reflect the proximity and concentration of nearby amenities, measured against a typical town-center environment.

  • Walkability emphasizes access to daily necessities such as groceries, pharmacies, banking, and routine services.
  • Motif Lifestyle emphasizes dining, cafés, parks, and leisure destinations that contribute to neighborhood character and quality of life.

All scores are normalized on a 0–100 scale to allow consistent comparison across different locations.

50

Homes For Sale

$296,518

Average List Price

Mechanicals & Utilities: Hot Water • Oil • Window Unit • Public Water Connected water

Exterior Features

Exterior Construction: Vinyl Siding

Roof Type: Shingle

Foundation: Concrete

Driveway: Private,Paved

Garage: Attached Garage,Paved,Driveway (1 car)

Parking: 6 Total

Patio/Deck: Shed,Gutters,Garden Area,Covered Deck,Underground Sprinkler

Utilities: Water: Public Water Connected

Outbuildings: Shed,Gutters,Garden Area,Covered Deck,Underground Sprinkler

Only motif connects you to a certified
"Local Market Expert"

Agent Photo
Steve Simos
Real Estate Advisor
Enfield • Connecticut Shoreline
Licensed Real Estate Agent – Connecticut
Broker Logo

 Verified Motif Advisor
Good morning Steve, I'm interested in
15 Sun Street, Enfield, Connecticut
By proceeding, you consent to receive calls and texts at the number you provided, and artificial voice, and email, from motif about your inquiry and similar properties. Your personal information will never be sold or given to a 3rd party.
Agent Photo
Steve Simos
george@appzentric.com
800-555-0003
Presented by motif • Source: MLS • Listed by: Gregory Heineman • Trend 2000 Real Estate • MLS# 24147453