Motif Luxe | Header

Good morning. Welcome to 40 Homestead Lane, Avon, CT

$549,900
5
Beds
3.00
Baths
2,350
SqFt
0.71
Acres

Pricing Insight: Originally listed for $549,900, the price has remained unchanged for approximately 37 days. This property has been on the market for approximately 37 days.

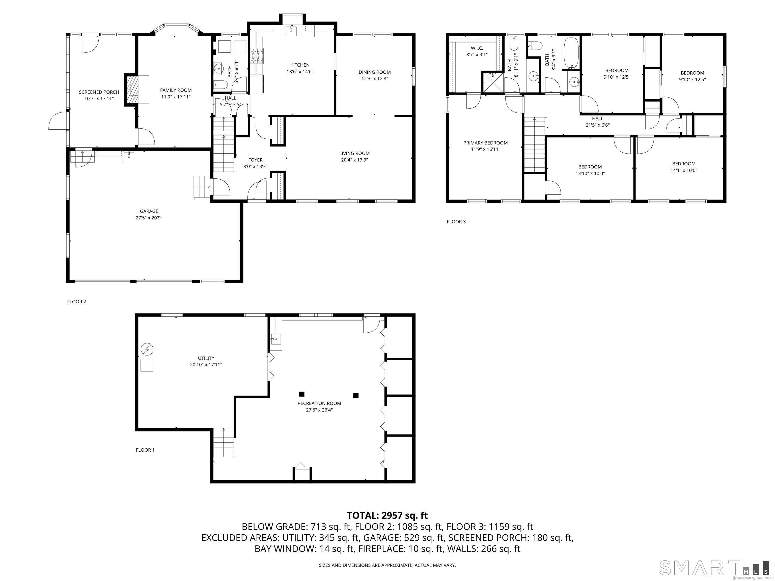
40 Homestead Lane, Avon, CT is a 5-bed, 3-bath, 2,350 square foot home built in 1979 , featuring colonial architecture.

This home is within the Avon school district. Local, with nearby schools including Per Board of Ed.

MLS #: 24145569

Offered Price: $549,900

Residence Type: Single Family

Architectural Style: Colonial

Living Area: 2,350 Sq. Ft.

Lot Size: 0.71 Acres

Neighborhood: N/A

County: Hartford

Year Built: 1979

Design & Construction: Frame

Heating: Hot Water

Cooling: Central Air

Garage Spaces: 2

Price per Sq Ft as listed: $234

Estimated Tax: $9,932

Days on Market: 25

Home Automation: Not specified

Energy Features: Not specified

Solar Contract: Not specified

Heating Fuel: Natural Gas

Fuel Type: Hot Water

Fuel Tank Location: Not specified

Cooling System: Central Air

Hot Water System: Natural Gas, 50 Gallon Tank

Air Radon Mitigation: Not specified

Water Radon Mitigation: Not specified

Price per square foot: $234 / Sq. Ft.

Tax assessed value: $322,990

Estimated Tax: $9,932

Architectural Style: Colonial

Design & Construction: Frame

Residence Type: Single Family

Year Constructed: 1979

Living Area: 2,350 Sq. Ft.

Lot Size: 0.71 Acres

Fuel: Natural Gas

Loading valuation...

Loading automated valuation...

AUTOMATED VALUATION ESTIMATE

Powered by Realtors Property Resource® (RPR)

Note: Computer-generated estimate, not an appraisal.

Understanding This Valuation

The RPR AVM considers:

  • Recent sales of comparable properties
  • Property characteristics and location
  • Market trends in Avon
  • Statistical modeling algorithms
Local Market Context
Active Listings: 31
Average Price: $548,335
Average DOM: 25 days

Complimentary CMAs, no obligation

With top of the notch school system in the state, this house is located in a quiet cul de sac offering spacious 5 bed/2.5 bath. Bring your vision and customization to the interiors and make it your new home. Private screened porch is perfect for gathering in winters while the backyard deck is perfect for summers. Downstairs is a natural gas fireplace in the living room , a cozy formal dining and well lighted family room with half bath and updated kitchen. Windows throughout the house have been replaced 4yrs ago. Refrigerator is 3yrs old. Washer /dryer conveniently located downstairs and is just 6yrs old. Upstairs is all carpeted and has primary bedroom suite . 4 bedrooms and 1 full bath. House has a walk out basement partially finished and could be perfect for a man cave or recreation room. Water heater is 2014. Additional sink located in the basement finished area. 2 car garage also has a sink and plenty of storage space.

Continue reading ▾

Flood Risk Assessment Water Body Detected Nearby

Water Proximity Detected: This property exhibits indicators suggesting nearby or referenced water features
Location Analysis:
Water features noted
Water Proximity:
Near water body
Topography:
Standard terrain • 0.7 acres
Water Indicators Found:
  • Water-related features referenced in listing details
Recommendations:
  • Professional flood assessment advised
  • Based on identified water-related indicators, flood insurance may warrant consideration
  • Consult FEMA Flood Maps for zone verification
  • Evaluate drainage systems
  • Review local flood history
Risk Level: Moderate

Property near water bodies. Consider flood insurance.

Walkability Score: calculating…
Motif Lifestyle Score: calculating…

Amenity Access Summary

  • Dining & Café Access: Low to Moderate
  • Daily Services: Limited
  • Recreational Space: Limited Nearby
How These Scores Are Calculated

These scores reflect the proximity and concentration of nearby amenities, measured against a typical town-center environment.

  • Walkability emphasizes access to daily necessities such as groceries, pharmacies, banking, and routine services.
  • Motif Lifestyle emphasizes dining, cafés, parks, and leisure destinations that contribute to neighborhood character and quality of life.

All scores are normalized on a 0–100 scale to allow consistent comparison across different locations.

31

Homes For Sale

$548,335

Average List Price

Mechanicals & Utilities: Hot Water • Natural Gas • Central Air • Public Water Connected water • 1 fireplaces

Exterior Features

Exterior Construction: Aluminum

Roof Type: Shingle

Foundation: Concrete

Garage: Attached Garage (2 car)

Utilities: Water: Public Water Connected

Only motif connects you to a certified
"Local Market Expert"

Agent Photo
Steve Simos
Real Estate Advisor
Avon • Connecticut Shoreline
Licensed Real Estate Agent – Connecticut
Broker Logo

 Verified Motif Advisor
Good morning Steve, I'm interested in
40 Homestead Lane, Avon, Connecticut
By proceeding, you consent to receive calls and texts at the number you provided, and artificial voice, and email, from motif about your inquiry and similar properties. Your personal information will never be sold or given to a 3rd party.
Agent Photo
Steve Simos
george@appzentric.com
800-555-0003
Presented by motif • Source: MLS • Listed by: Divya Kataria • Berkshire Hathaway NE Prop. • MLS# 24145569