Motif Luxe | Header

Good afternoon. Welcome to 330 Crystal Avenue, New London, CT

$329,900
2
Beds
3.00
Baths
1,760
SqFt
0.00
Acres

Pricing Insight: Originally listed for $329,900, the price has remained unchanged for approximately 50 days. This property has been on the market for approximately 50 days. MLS reports 42 Days on Market (DOM) before it went under contract.

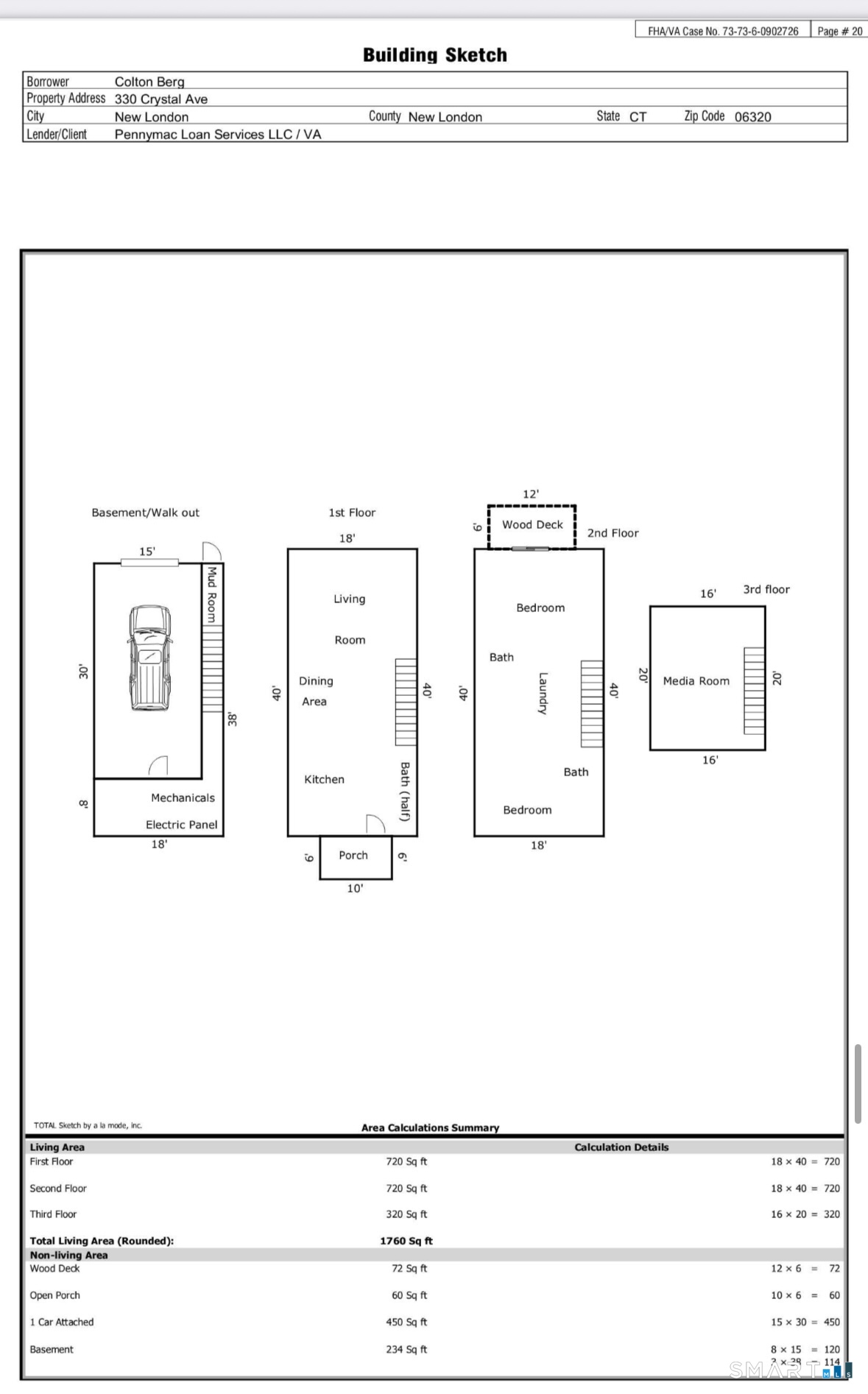
Unit 3 at 330 Crystal Avenue, New London, CT is a 2-bed, 3-bath, 1,760 square foot home built in 2006 , featuring townhouse architecture. This residence is part of a 20-unit community. This home is part of a homeowners association, with dues of $315 paid monthly. The HOA fee includes: grounds maintenance, trash pickup, snow removal, and property management. Community amenities include: guest parking.

This home is within the New London school district. Local, with nearby schools including Per Board of Ed.

MLS #: 24143896

Offered Price: $329,900

Residence Type: Condo/Co-Op

Architectural Style: Townhouse

Living Area: 1,760 Sq. Ft.

Lot Size: 0.00 Acres

Neighborhood: N/A

County: New London

Year Built: 2006

Design & Construction: Frame

Heating: Hot Air

Cooling: Central Air

Garage Spaces: 1

Price per Sq Ft as listed: $187

Estimated Tax: $5,122

Days on Market: 42

Home Automation: Not specified

Energy Features: Programmable Thermostat, Ridge Vents, Thermopane Windows

Solar Contract: Not specified

Heating Fuel: Natural Gas

Fuel Type: Hot Air

Fuel Tank Location: Not specified

Cooling System: Central Air

Hot Water System: Electric, 40 Gallon Tank

Air Radon Mitigation: Not specified

Water Radon Mitigation: Not specified

Price per square foot: $187 / Sq. Ft.

Tax assessed value: $188,300

Estimated Tax: $5,122

Architectural Style: Townhouse

Design & Construction: Frame

Residence Type: Condo/Co-Op

Year Constructed: 2006

Living Area: 1,760 Sq. Ft.

Lot Size: 0.00 Acres

Fuel: Natural Gas

Loading valuation...

Loading automated valuation...

AUTOMATED VALUATION ESTIMATE

Powered by Realtors Property Resource® (RPR)

Note: Computer-generated estimate, not an appraisal.

Understanding This Valuation

The RPR AVM considers:

  • Recent sales of comparable properties
  • Property characteristics and location
  • Market trends in New London
  • Statistical modeling algorithms
Local Market Context
Active Listings: 50
Average Price: $108,248
Average DOM: 42 days

Complimentary CMAs, no obligation

Great location, walking distance to US Coast Guard Academy & Conn College. Newer, rarely available 1,760 sft, 2 bedroom unit with an additional 16' x 15' loft above Primary Bedroom that can be used as a sitting area, gym or office. The main level has an open floor plan with a kitchen appointed with stainless steel appliances, brushed nickel hardware and a L- shaped granite counter that offers additional seating, Living/Room Dining Combo with hardwood flooring. 2nd floor consists of 2 bedrooms, each with their own private full bath, upper full size laundry closet, loft above the primary bedroom. Primary also features an outdoor balcony. The basement features a garage and additional large mechanical/workshop/storage room. Quality construction and easy maintenance is evident throughout this unit. Located conveniently near I-95 for easy commuting.

Continue reading ▾

Flood Risk Assessment

Location Analysis:
Inland New London location
Water Proximity:
No direct water access
Topography:
Standard terrain
Recommendations:
  • Consult FEMA Flood Maps for accurate zone info
  • Consider flood insurance based on professional assessment
  • Evaluate property drainage during inspection
  • Review local flood history with town officials
Risk Level: Low

Minimal flood risk indicators. Verify with FEMA flood maps.

Walkability Score: calculating…
Motif Lifestyle Score: calculating…

Amenity Access Summary

  • Dining & Café Access: Low to Moderate
  • Daily Services: Limited
  • Recreational Space: Limited Nearby
How These Scores Are Calculated

These scores reflect the proximity and concentration of nearby amenities, measured against a typical town-center environment.

  • Walkability emphasizes access to daily necessities such as groceries, pharmacies, banking, and routine services.
  • Motif Lifestyle emphasizes dining, cafés, parks, and leisure destinations that contribute to neighborhood character and quality of life.

All scores are normalized on a 0–100 scale to allow consistent comparison across different locations.

50

Homes For Sale

$108,248

Average List Price

Mechanicals & Utilities: Hot Air • Natural Gas • Central Air • Public Water Connected water

Exterior Features

Exterior Construction: Vinyl Siding

Garage: Under House Garage (1 car)

Patio/Deck: Balcony,Sidewalk

Utilities: Water: Public Water Connected

Only motif connects you to a certified
"Local Market Expert"

Agent Photo
George Antonopoulos
Real Estate Advisor
New London • Connecticut Shoreline
Licensed Real Estate Agent – Connecticut
Broker Logo

 Verified Motif Advisor
Good afternoon George, I'm interested in
330 Crystal Avenue, New London, Connecticut
By proceeding, you consent to receive calls and texts at the number you provided, and artificial voice, and email, from motif about your inquiry and similar properties. Your personal information will never be sold or given to a 3rd party.
Agent Photo
George Antonopoulos
george@appzentric.com
800-555-0001
Presented by motif • Source: MLS • Listed by: Denise Badiali • Century 21 AllPoints Realty • MLS# 24143896