Good afternoon. Welcome to 124 Main Street, Brooklyn, CT. This is George Antonopoulos, your verified Motif Advisor.

$295,000
4
Beds
2.00
Baths
1,644
SqFt
0.23
Acres

124 Main Street, Brooklyn, CT is a Bungalow and Cottage residence located in Brooklyn, CT. This property was listed for sale on (approximately days ago) and is currently offered at $295,000.

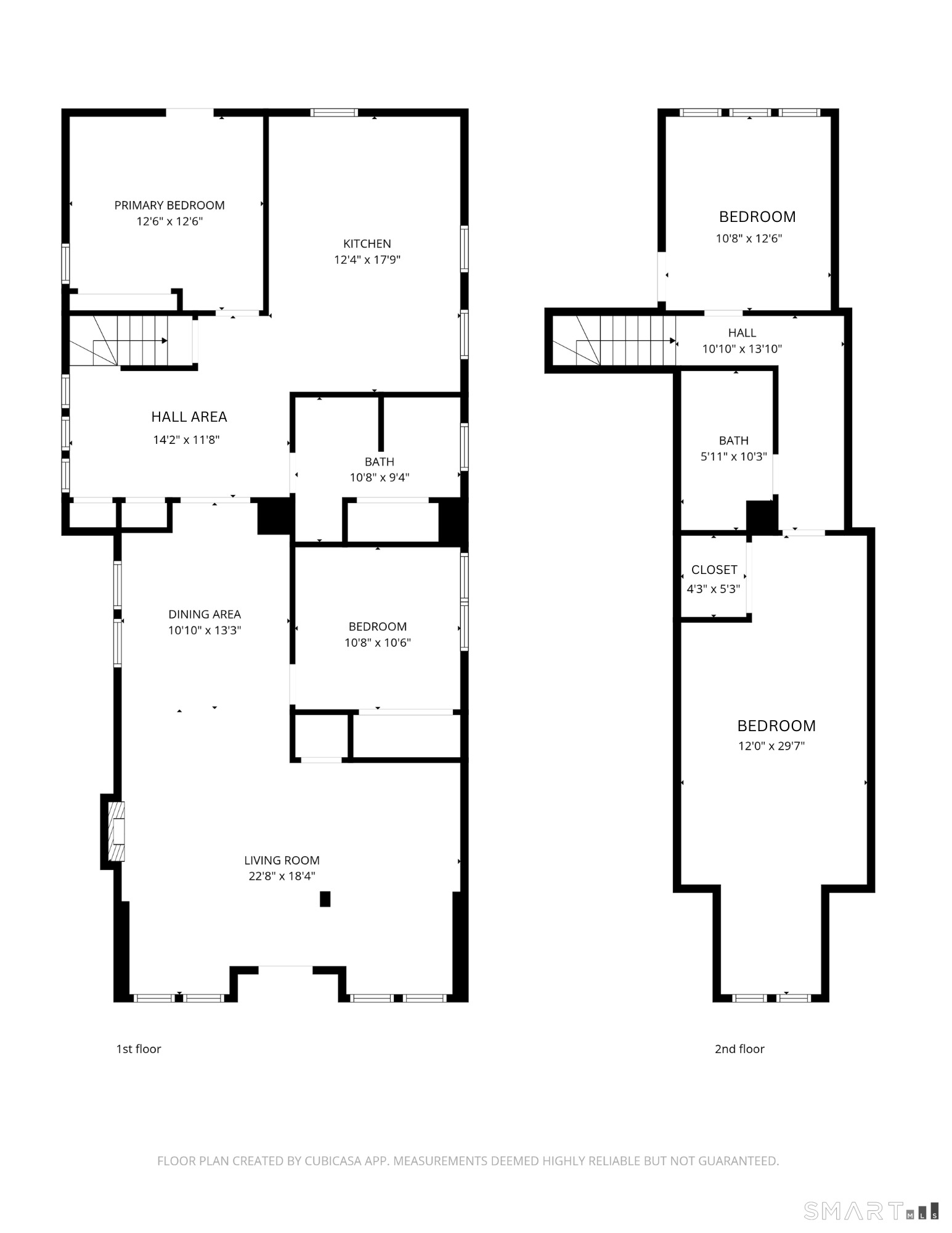
124 Main Street, Brooklyn, CT is a 4-bed, 2-bath, 1,644 square foot home built in 1930 , featuring Bungalow,Cottage architecture

This home is within the Brooklyn school district. Local, with nearby schools including Brooklyn.

Pricing Insight: Originally listed at $295,000, the price has since been adjusted by $0 (0%).

MLS #: 24162375

Days on Market: 0

Residence Type: Single Family

Architectural Style: Bungalow,Cottage

Neighborhood: East Brooklyn

Garage Spaces: 1

Heating: Hot Air

Offered Price: $295,000

Price per Sq Ft: $179

Year Built: 1930

Living Area: 1,644 Sq. Ft.

Lot Size: 0.23 Acres

Design & Construction: Frame

Estimated Tax: $3,440

Price per square foot: $179 / Sq. Ft.

Tax assessed value: $139,780

Estimated Tax: $3,440

Architectural Style: Bungalow,Cottage

Design & Construction: Frame

Residence Type: Single Family

Year Constructed: 1930

Living Area: 1,644 Sq. Ft.

Lot Size: 0.23 Acres

Fuel: Natural Gas

Home Automation: Not specified

Energy Features: Storm Doors

Solar Contract: Not specified

Heating Fuel: Natural Gas

Fuel Tank Location: Not specified

Cooling System: None

Hot Water System: Not specified

Air Radon Mitigation: Not specified

Water Radon Mitigation: Not specified

Charming bungalow-style home offering 4 bedrooms and 1.5 baths with 1,642 square feet of living space. Fully renovated in 2009, this home features a surprisingly spacious layout with a large living room and a generously sized eat-in kitchen. Don't let the exterior fool you-there's more space inside than meets the eye. A great opportunity for those looking for space and value in a well-maintained home.

Continue reading ▾

Mechanicals & Utilities: Hot Air • Natural Gas • None • Public Water Connected water

Exterior Features

Exterior Construction: Shake,Vinyl Siding

Roof Type: Asphalt Shingle

Foundation: Concrete,Stone

Garage: Under House Garage (1 car)

Patio/Deck: Balcony,Sidewalk,Gutters,Lighting

Utilities: Water: Public Water Connected

Only motif connects you to a certified
"Local Market Expert"

Agent Photo
George Antonopoulos
Your Brooklyn Market Expert
Broker Logo
Good afternoon George, I'm interested in
124 Main Street, Brooklyn, Connecticut
By proceeding, you consent to receive calls and texts at the number you provided, and artificial voice, and email, from motif about your inquiry and similar properties. Your personal information will never be sold or given to a 3rd party.
Agent Photo
George Antonopoulos
george@appzentric.com
800-555-0001
Presented by motif • Source: MLS • Listed by: Heather Ash Spadola • RE/MAX One • MLS# 24162375 • P: (860) 444-7362 • C: (860) 786-8080