Good morning. Welcome to 25 Stonegate Circle, Cheshire, CT. This is George Antonopoulos, your verified Motif Advisor.

$499,000
4
Beds
2.00
Baths
1,998
SqFt
0.00
Acres

25 Stonegate Circle, Cheshire, CT is a Single Family Detached residence part of a 30-unit community located in Cheshire, CT. This property was listed for sale on (approximately days ago) and is currently offered at $499,000.

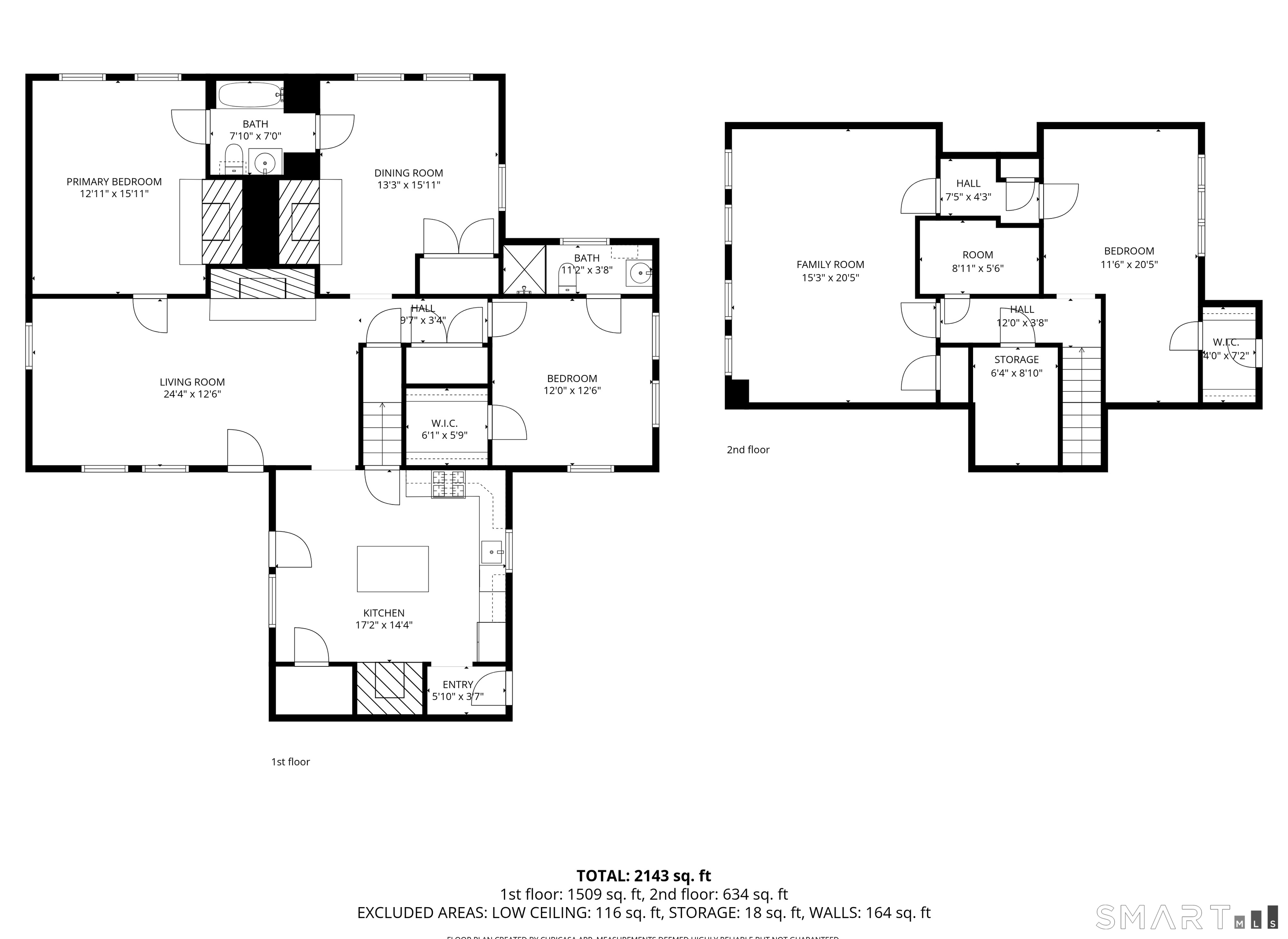
25 Stonegate Circle, Cheshire, CT is a 4-bed, 2-bath, 1,998 square foot home built in 1764 , featuring Single Family Detached architecture This home is part of a homeowners association, with dues of $425 paid Monthly. The HOA fee includes: trash pickup and snow removal.

This home is within the Cheshire school district. Local, with nearby schools including Per Board of Ed.

Pricing Insight: Originally listed at $499,000, the price has since been adjusted by $0 (0%).

MLS #: 24156003

Days on Market: 0

Residence Type: Condo/Co-Op

Architectural Style: Single Family Detached

Neighborhood: N/A

Garage Spaces: 2

Heating: Hot Water

Offered Price: $499,000

Price per Sq Ft: $250

Year Built: 1764

Living Area: 1,998 Sq. Ft.

Lot Size: 0.00 Acres

Design & Construction: Frame

Estimated Tax: $10,153

Price per square foot: $250 / Sq. Ft.

Tax assessed value: $341,390

Estimated Tax: $10,153

Architectural Style: Single Family Detached

Design & Construction: Frame

Residence Type: Condo/Co-Op

Year Constructed: 1764

Living Area: 1,998 Sq. Ft.

Lot Size: 0.00 Acres

Fuel: Gas In Street

Home Automation: Not specified

Energy Features: Generator,Thermopane Windows

Solar Contract: Not specified

Heating Fuel: Gas In Street

Fuel Tank Location: Not specified

Cooling System: Central Air

Hot Water System: Not specified

Air Radon Mitigation: Not specified

Water Radon Mitigation: Not specified

A rare opportunity to own the Reverend John Hull House at Stonegate, a 55+ community in Cheshire. This home was originally built in 1764 but was gutted and restored for today's living in 2005, still keeping all it's historic charm and features such as original wide plank flooring, exposed hand-hewn beams and 4 fireplaces (3 functioning w gas). The spacious Living Room w large gas FP creates a warm and inviting atmosphere. The updated Kitchen is equipped w granite counters, gas FP, island w seating and stainless appliances (newer dishwasher, gas range, microwave). The Dining Room is the perfect place for enjoying meals w an impressive stone FP (non functioning) for ambiance. Also on the main level of the home are the Primary Bedroom w attached full Bath and gas FP for added comfort and an additional Bedroom also w an attached full bath and WI closet. The second level of the home is an enchanting space w a mural leading up the staircase to two additional Bedrooms. The first Bedroom has WW carpet, paneling and a WI closet. The second spacious Bedroom has wide board flooring, ample storage space, built-ins and cozy window seats w beautiful windows. Well cared for home-new gas furnace & AC installed 4 y/o, hot water heater 2020, whole house generator, roof 2019, new Radon system, alarm system, new smoke & CO detectors, 2 car attached garage. Great location close to shopping and restaurants. Enjoy maintenance free condominium living in this prestigious active adult community.

Continue reading ▾

Mechanicals & Utilities: Hot Water • Gas In Street • Central Air • Public Water Connected water • 4 fireplaces

Exterior Features

Exterior Construction: Wood

Garage: Attached Garage (2 car)

Patio/Deck: Sidewalk,Deck,Gutters,Covered Deck,Patio

Utilities: Water: Public Water Connected

Only motif connects you to a certified
"Local Market Expert"

Agent Photo
George Antonopoulos
Your Cheshire Market Expert
Broker Logo
Good morning George, I'm interested in
25 Stonegate Circle, Cheshire, Connecticut
By proceeding, you consent to receive calls and texts at the number you provided, and artificial voice, and email, from motif about your inquiry and similar properties. Your personal information will never be sold or given to a 3rd party.
Agent Photo
George Antonopoulos
george@appzentric.com
800-555-0001
Presented by motif • Source: MLS • Listed by: Philip Giampietro • Coldwell Banker Realty • MLS# 24156003 • P: (203) 272-1633 • C: (203) 415-7664