Motif Luxe | Header

Good evening. Welcome to 95 Masna Place, Stratford, CT

$479,000
3
Beds
3.00
Baths
2,594
SqFt
0.42
Acres

Pricing Insight: Originally listed for $479,000, the price has remained unchanged.

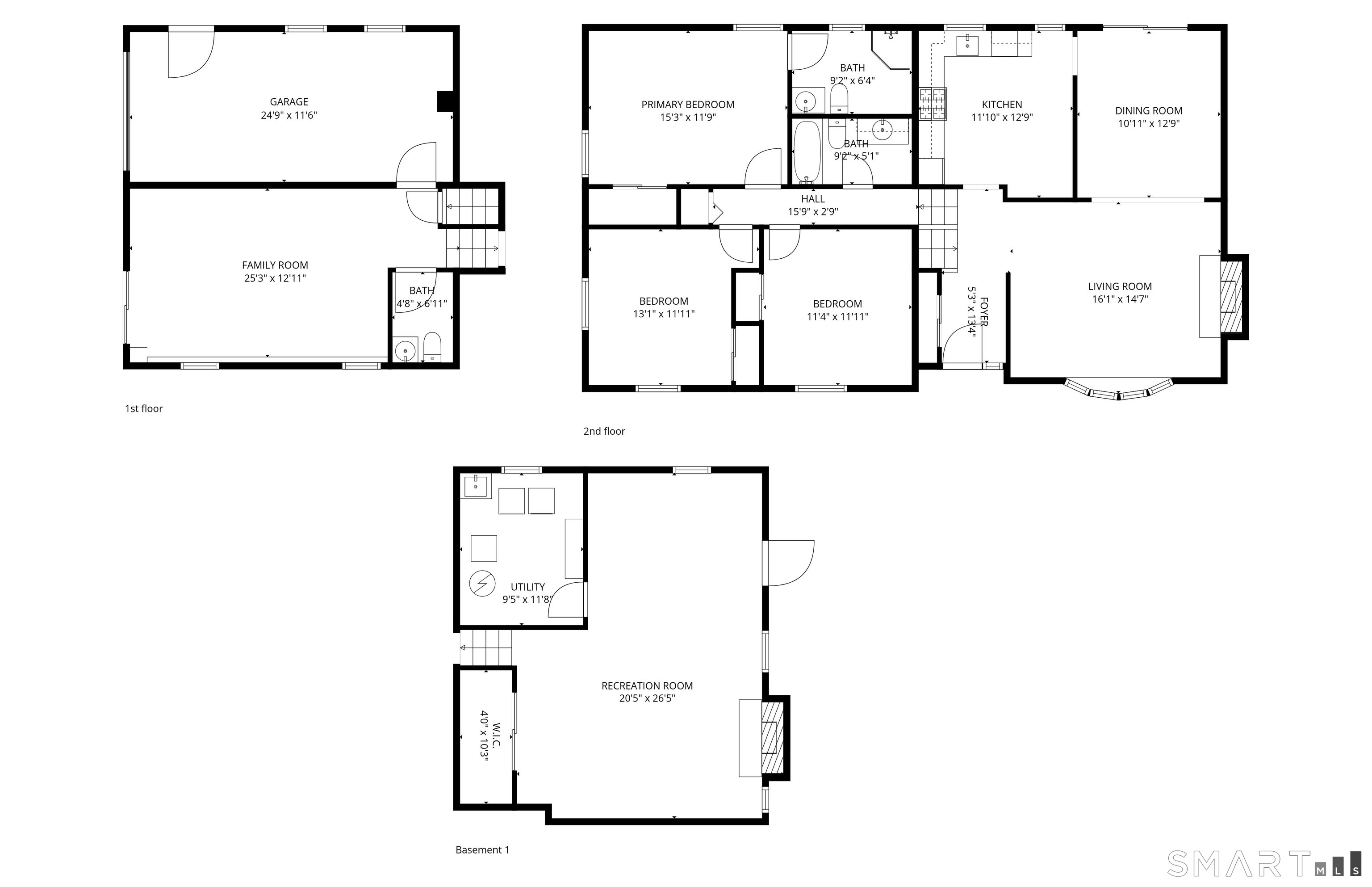
95 Masna Place, Stratford, CT is a 3-bed, 3-bath, 2,594 square foot home built in 1968 , featuring split level architecture.

This home is within the Stratford school district. Local, with nearby schools including Second Hill Lane.

MLS #: 24151282

Offered Price: $479,000

Residence Type: Single Family

Architectural Style: Split Level

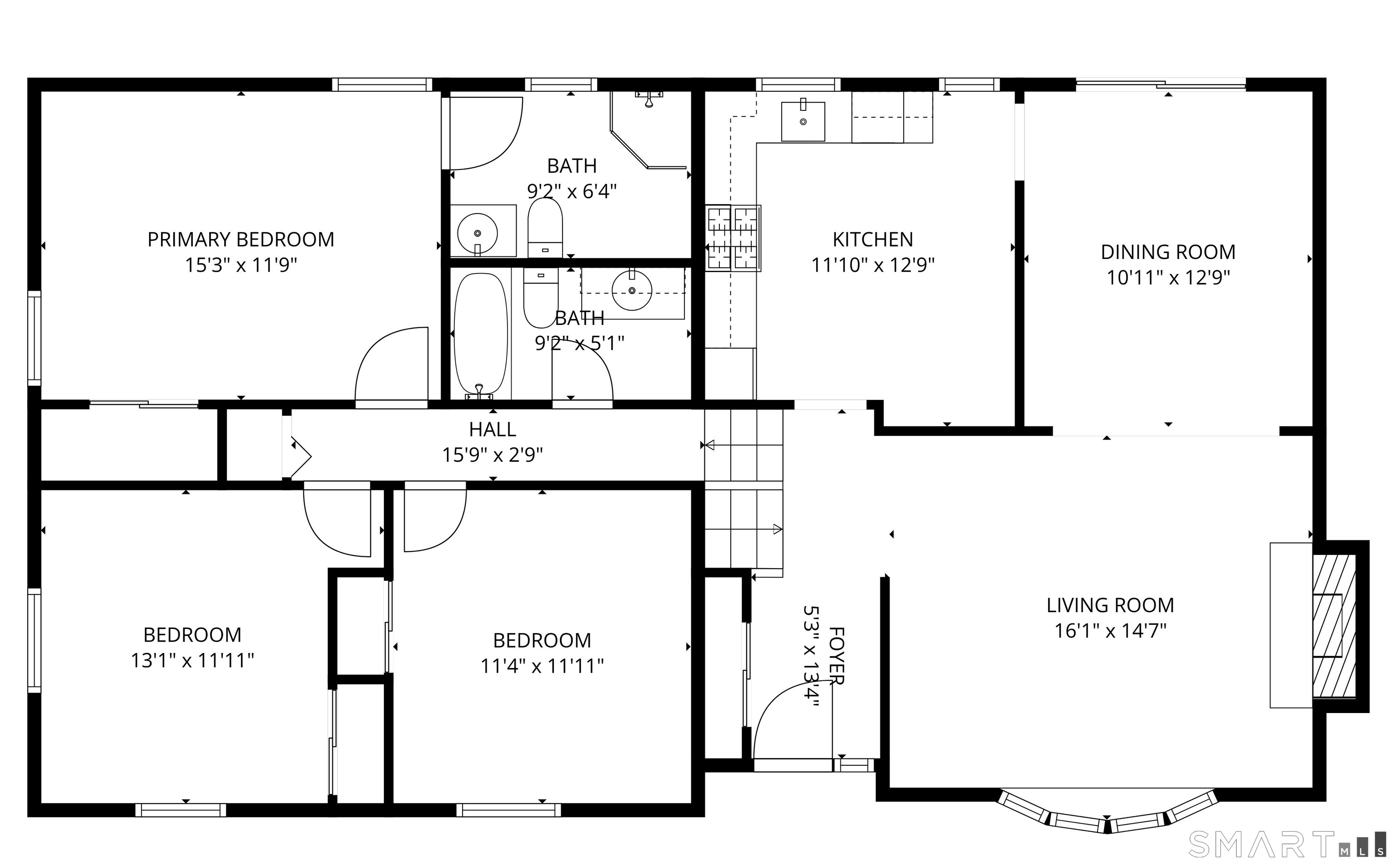
Living Area: 2,594 Sq. Ft.

Lot Size: 0.42 Acres

Neighborhood: North End

County: Fairfield

Year Built: 1968

Design & Construction: Frame

Heating: Hot Water

Cooling: Ceiling Fans,Wall Unit

Garage Spaces: 1

Price per Sq Ft as listed: $185

Estimated Tax: $8,495

Days on Market: 0

$435,000
4 Beds · 2 Baths · 1,296 Sq Ft
375 Silver Street, Bridgeport

Home Automation: Not specified

Energy Features: Not specified

Solar Contract: Not specified

Heating Fuel: Gas In Street

Fuel Type: Hot Water

Fuel Tank Location: Not specified

Cooling System: Ceiling Fans, Wall Unit

Hot Water System: Tank Size Unknown

Air Radon Mitigation: Not specified

Water Radon Mitigation: Not specified

Price per square foot: $185 / Sq. Ft.

Tax assessed value: $211,330

Estimated Tax: $8,495

Architectural Style: Split Level

Design & Construction: Frame

Residence Type: Single Family

Year Constructed: 1968

Living Area: 2,594 Sq. Ft.

Lot Size: 0.42 Acres

Fuel: Gas In Street

Loading valuation...

Loading automated valuation...

AUTOMATED VALUATION ESTIMATE

Powered by Realtors Property Resource® (RPR)

Note: Computer-generated estimate, not an appraisal.

Understanding This Valuation

The RPR AVM considers:

  • Recent sales of comparable properties
  • Property characteristics and location
  • Market trends in Stratford
  • Statistical modeling algorithms
Local Market Context
Active Listings: 105
Average Price: $355,229
Average DOM: 0 days

Complimentary CMAs, no obligation

First time on the market! Lovingly cared-for three bedroom custom-built split-level home is ready for its next chapter. Set at the end of a quiet cul-de-sac in Stratford's desirable North End, the home sits on a level lot within an established neighborhood that offers both privacy and a true sense of community. Inside, hardwood floors grace the first two levels, complemented by a welcoming living room fireplace for quiet evenings and a lower-level game room fireplace-perfect for gatherings, movie nights, or weekend fun. A comfortable family room provides convenient access to the driveway, while a spacious deck overlooks the level backyard, ideal for summer dinners, playtime, pets, and making memories. Thoughtful details include a laundry chute conveniently located in the hall bathroom, generous storage with a pull-down attic, and peace-of-mind updates such as a newer roof and siding. This well-loved home is ready to welcome its first new owners. Easy access to Merritt Parkway, Route 8 and I95. Train station just miles down the road.

Continue reading ▾

Flood Risk Assessment

Location Analysis:
Inland Stratford location
Water Proximity:
No direct water access
Topography:
Standard terrain • 0.4 acres
Recommendations:
  • Consult FEMA Flood Maps for accurate zone info
  • Consider flood insurance based on professional assessment
  • Evaluate property drainage during inspection
  • Review local flood history with town officials
Risk Level: Low

Minimal flood risk indicators. Verify with FEMA flood maps.

Walkability Score: calculating…
Motif Lifestyle Score: calculating…

Amenity Access Summary

  • Dining & Café Access: Low to Moderate
  • Daily Services: Limited
  • Recreational Space: Limited Nearby
How These Scores Are Calculated

These scores reflect the proximity and concentration of nearby amenities, measured against a typical town-center environment.

  • Walkability emphasizes access to daily necessities such as groceries, pharmacies, banking, and routine services.
  • Motif Lifestyle emphasizes dining, cafés, parks, and leisure destinations that contribute to neighborhood character and quality of life.

All scores are normalized on a 0–100 scale to allow consistent comparison across different locations.

105

Homes For Sale

$355,229

Average List Price

Mechanicals & Utilities: Hot Water • Gas In Street • Ceiling Fans,Wall Unit • Public Water Connected water • 2 fireplaces

Exterior Features

Exterior Construction: Vinyl Siding

Roof Type: Asphalt Shingle

Foundation: Concrete

Garage: Attached Garage (1 car)

Utilities: Water: Public Water Connected

Only motif connects you to a certified
"Local Market Expert"

Agent Photo
Steve Simos
Real Estate Advisor
Stratford • Connecticut Shoreline
Licensed Real Estate Agent – Connecticut
Broker Logo

 Verified Motif Advisor
Good evening Steve, I'm interested in
95 Masna Place, Stratford, Connecticut
By proceeding, you consent to receive calls and texts at the number you provided, and artificial voice, and email, from motif about your inquiry and similar properties. Your personal information will never be sold or given to a 3rd party.
Agent Photo
Steve Simos
george@appzentric.com
800-555-0003
Presented by motif • Source: MLS • Listed by: Sherri Cordelli • William Pitt Sotheby's Int'l • MLS# 24151282