motif Luxe International Realty
$329,000
167 Hoadley Street, Naugatuck, CT
Property Image
4
Beds
2.00
Baths
1,008
Sq Ft
0.23
Acres

Property Summary

167 Hoadley, Naugatuck, CT is a Cape Cod residence located in Naugatuck, CT. and is currently offered at $329,000.

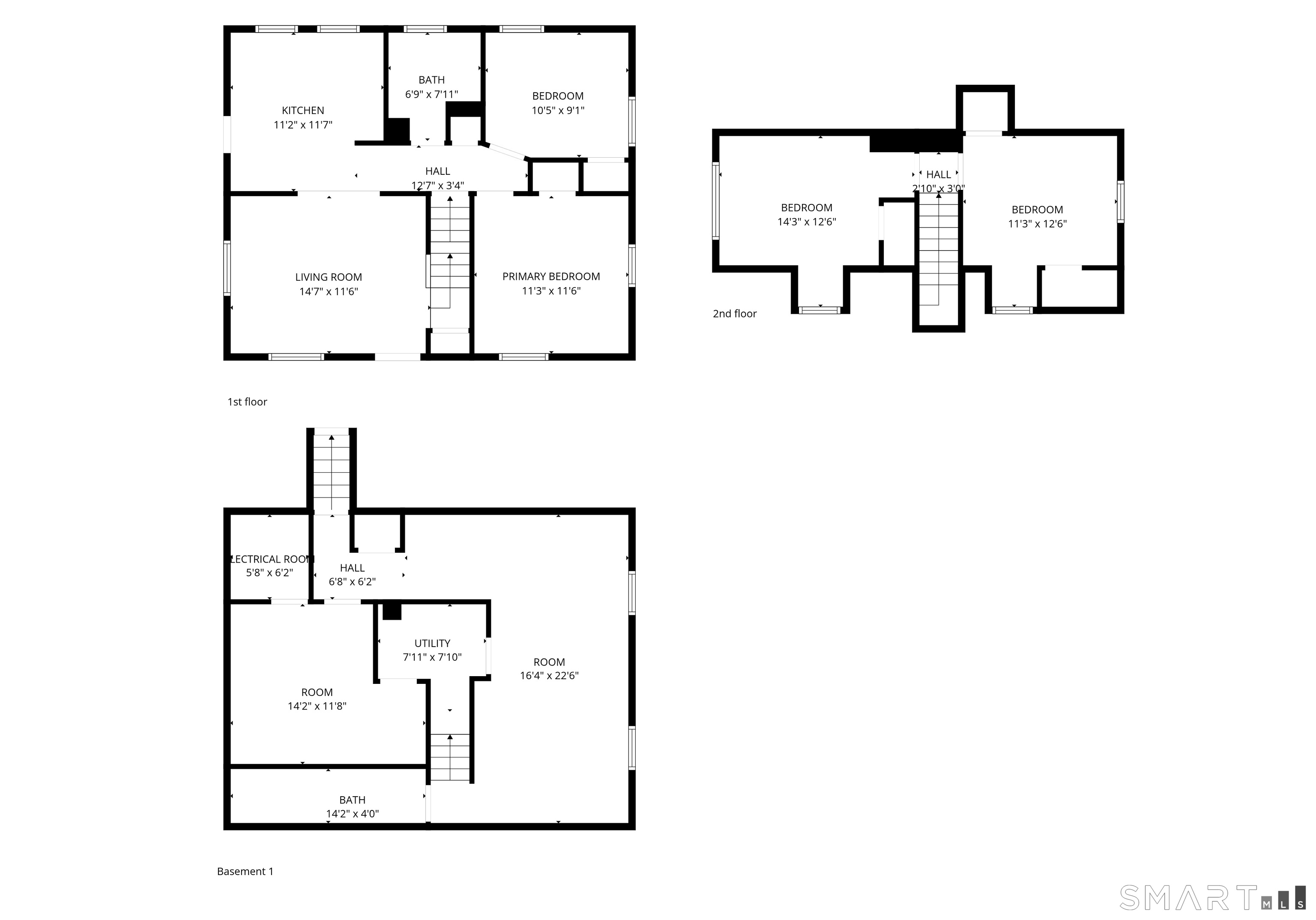
167 Hoadley, Naugatuck, CT is a 4-bed, 2-bath, 1,008 square foot home built in 1945 , featuring Cape Cod architecture

This home is within the Naugatuck school district (Local) with nearby schools including Per Board of Ed.

Pricing Insight: Originally listed at $329,000, the price has since been adjusted by $0 (0%). It has been on the market for approximately 15 days.

Property Overview

MLS #: 24153403

Property Type: Single Family

Architectural Style: Cape Cod

Year Built: 1945

Neighborhood: N/A

Living Area: 1,008 Sq. Ft.

Lot Size: 0.23 Acres

Construction: Frame

Heating: Gas on Gas

Price per Sq Ft: $326

Property Description

This 4-bedroom, 2-bath home offers a functional layout with additional living space in the finished basement. Recent updates include a newer roof, fresh interior and exterior paint, hardwood floors, and new appliances. The property also features a spacious backyard, providing great outdoor space. Conveniently located near shopping, dining, schools, and local amenities. *******Highest and best due Saturday 7pm *********

Property Images

Property Image 2 Property Image 3 Property Image 4 Property Image 5 Property Image 6 Property Image 7 Property Image 8 Property Image 9 Property Image 10 Property Image 11 Property Image 12 Property Image 13 Property Image 14 Property Image 15 Property Image 16 Property Image 17 Property Image 18 Property Image 19 Property Image 20 Property Image 21 Property Image 22 Property Image 23 Property Image 24 Property Image 25 Property Image 26 Property Image 27 Property Image 28 Property Image 29 Property Image 30 Property Image 31
Agent Photo
Naugatuck Market Expert
George Antonopoulos
Broker Logo
Phone: 800-555-0001
Email: george@appzentric.com