motif Luxe International Realty
$789,000
1050 Jarvis Street, Cheshire, CT
Property Image
4
Beds
3.00
Baths
2,506
Sq Ft
1.90
Acres

Property Summary

1050 Jarvis, Cheshire, CT is a Contemporary residence located in Cheshire, CT. and is currently offered at $789,000.

1050 Jarvis, Cheshire, CT is a 4-bed, 3-bath, 2,506 square foot home built in 2025 , featuring Contemporary architecture

This home is within the Cheshire school district (Local) with nearby schools including Highland.

Pricing Insight: Originally listed at $789,000, the price has since been adjusted by $0 (0%). It has been on the market for approximately 8 days.

Property Overview

MLS #: 24149778

Property Type: Single Family

Architectural Style: Contemporary

Year Built: 2025

Neighborhood: N/A

Living Area: 2,506 Sq. Ft.

Lot Size: 1.90 Acres

Construction: Frame

Heating: Gas on Gas

Price per Sq Ft: $315

Property Description

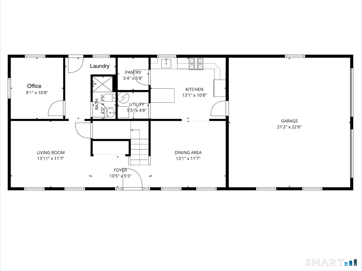
Brand-new construction completed on 12/12/2025 and currently receiving final finishing touches by the owner. This beautiful home offers 4 spacious bedrooms, 3 full bathrooms, and a 2-car garage with an additional 506 square feet of garage space. The Town has issued the Certificate of Occupancy (CO). Thoughtfully designed layout with modern finishes throughout. A rare opportunity to own a newly built home.

Property Images

Property Image 2 Property Image 3 Property Image 4 Property Image 5 Property Image 6 Property Image 7 Property Image 8 Property Image 9
Agent Photo
Cheshire Market Expert
Steve Simos
Broker Logo
Phone: 800-555-0003
Email: george@appzentric.com