motif Luxe International Realty
$889,900
383 Leonard Road, Middlebury, CT
Property Image
4
Beds
5.00
Baths
3,220
Sq Ft
1.23
Acres

Property Summary

383 Leonard, Middlebury, CT is a Split Level residence located in Middlebury, CT. and is currently offered at $889,900.

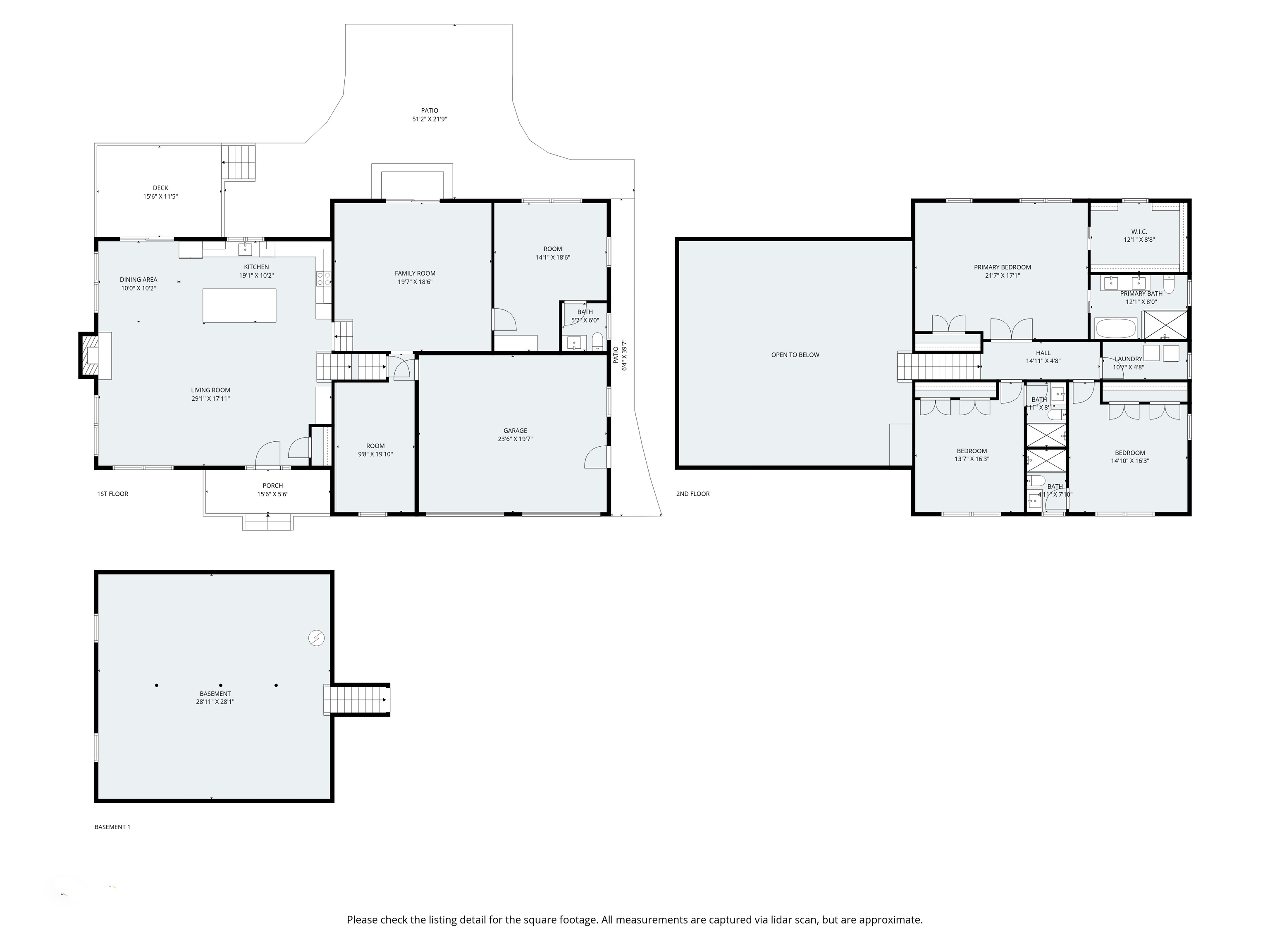
383 Leonard, Middlebury, CT is a 4-bed, 5-bath, 3,220 square foot home built in 2024 , featuring Split Level architecture

This home is within the Middlebury school district (Local) with nearby schools including Per Board of Ed.

Pricing Insight: Originally listed at $889,900, the price has since been adjusted by $0 (0%). It has been on the market for approximately 70 days.

Property Overview

MLS #: 24141215

Property Type: Single Family

Architectural Style: Split Level

Year Built: 2024

Neighborhood: N/A

Living Area: 3,220 Sq. Ft.

Lot Size: 1.23 Acres

Construction: Frame

Heating: Hot Air,Hydro Air

Price per Sq Ft: $276

Property Description

Welcome to your dream home...a beautifully designed 3220 sq ft NEW CONSTRUCTION offering warmth, space and flexibility for today's modern family. With 4 generous bedrooms and 4.5 bathrooms, this home invites you to live, laugh and grow in comfort. You have to see in person to appreciate the design of each of the bedrooms with their one full bath and double closet space. The heart of the home is the open concept main level, where the kitchen, dining and living areas come together around a cozy electric fireplace- perfect for family dinners, holiday gatherings, or quiet evenings in. The chef's kitchen is as functional as it is stunning, featuring granite countertops, tiled backsplash, double ovens, a large island ideal for casual meals and an abundance of cabinets for all your kitchen treasures. Step through the sliding doors to a spacious trex deck(16x12), perfect for morning coffee or weekend barbecues. Stairs led you down to a charming patio and walkway the wraps around the home- an entertainer's dream and safe place to play and explore. The lower level is designed with versatility in mind- a warm family room, a private bedroom with half bath (easy convertible to full) for guests or possible in law setup and another full bathroom with a second laundry hook-up for more convenience. Upstairs, the peaceful oversized primary suite is your personal retreat complete with a large walk-in closet and a spa-like bathroom featuring a soaking tub, glass shower and double vanities

Property Images

Property Image 2 Property Image 3 Property Image 4 Property Image 5 Property Image 6 Property Image 7 Property Image 8 Property Image 9 Property Image 10 Property Image 11 Property Image 12 Property Image 13 Property Image 14 Property Image 15 Property Image 16 Property Image 17 Property Image 18 Property Image 19 Property Image 20 Property Image 21 Property Image 22 Property Image 23 Property Image 24 Property Image 25 Property Image 26 Property Image 27 Property Image 28 Property Image 29 Property Image 30 Property Image 31 Property Image 32 Property Image 33 Property Image 34 Property Image 35 Property Image 36 Property Image 37 Property Image 38 Property Image 39 Property Image 40
Agent Photo
Middlebury Market Expert
Steve Simos
Broker Logo
Phone: 800-555-0003
Email: george@appzentric.com