motif Luxe International Realty
$449,000
24 Lake Shore Boulevard, Stafford, CT
Property Image
2
Beds
3.00
Baths
2,206
Sq Ft
0.14
Acres

Property Summary

24 Lake Shore, Stafford, CT is a Colonial residence located in Stafford, CT. and is currently offered at $449,000.

24 Lake Shore, Stafford, CT is a 2-bed, 3-bath, 2,206 square foot home built in 2003 , featuring Colonial architecture

This home is within the Stafford school district (Local) with nearby schools including Staffordville.

Pricing Insight: Originally listed at $449,000, the price has since been adjusted by $0 (0%). It has been on the market for approximately 26 days.

Property Overview

MLS #: 24146888

Property Type: Single Family

Architectural Style: Colonial

Year Built: 2003

Neighborhood: Staffordville

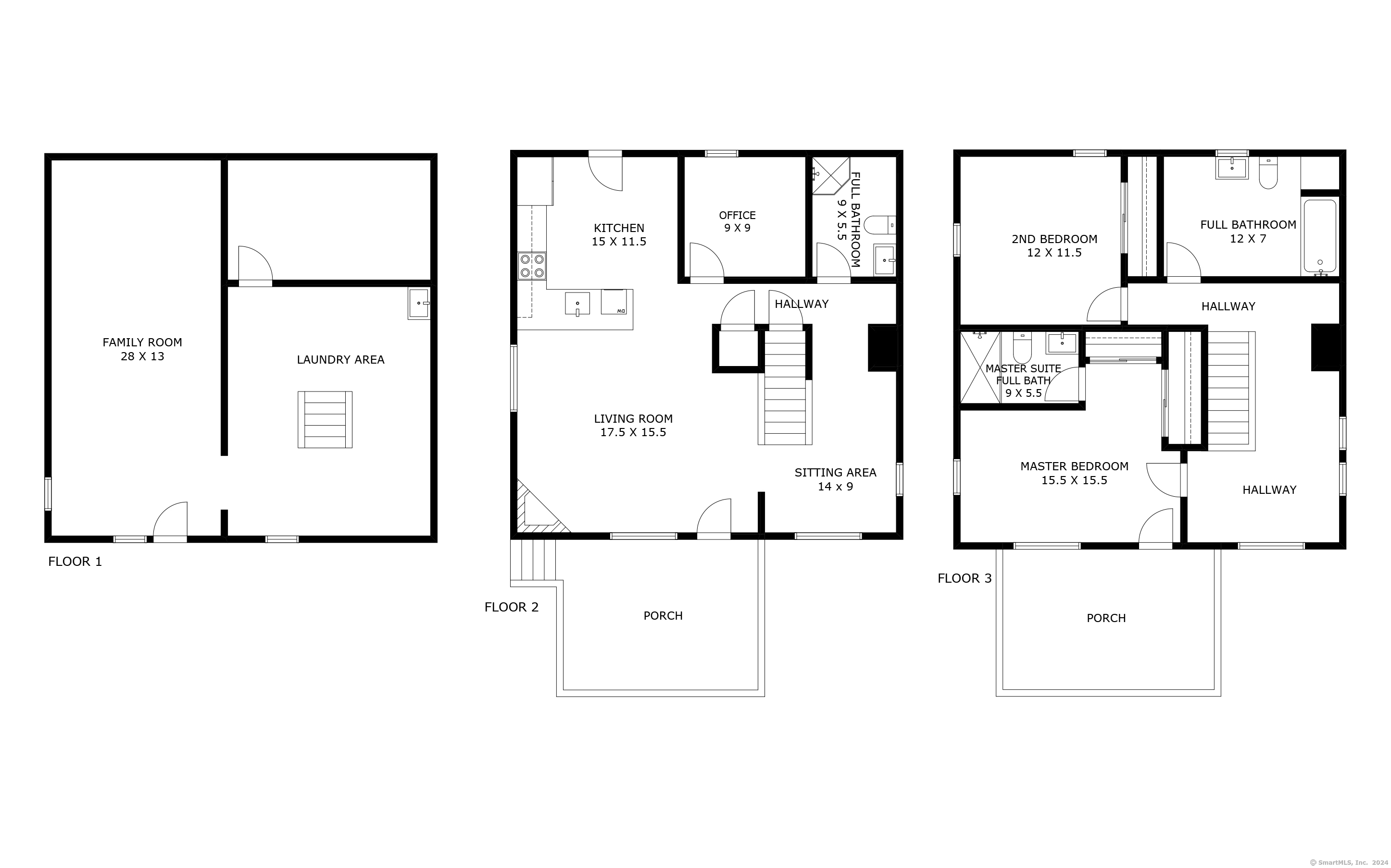
Living Area: 2,206 Sq. Ft.

Lot Size: 0.14 Acres

Construction: Frame,Concrete

Heating: Hot Water

Price per Sq Ft: $204

Property Description

Lake Living at Its Finest - Staffordville Reservoir Experience the perfect blend of luxury, lifestyle, and location in this stunning Colonial overlooking the Staffordville Reservoir, complete with lake beach rights (approx. $250/year). Perched high on a hill, this three-level home offers breathtaking water views and the feel of brand-new construction, having been completely renovated inside and out. The main level features a bright, open-concept living and family room, a beautifully redesigned kitchen, a flexible third bedroom or home office, and a full bath with modern finishes. Upstairs, the primary suite is a true retreat with a spa-style bath, oversized closets, and private porch access with panoramic lake views. A second bedroom and full bath complete the upper level. The finished walk-out lower level adds exceptional versatility with a family room, laundry area, and potential for additional bedrooms. Outdoors, enjoy mature trees, a private patio with fire pit, and professionally installed paver walkways. Every major system is NEW-kitchen, baths, windows, doors, roof, boiler, water heater, siding, porches, plumbing, electrical, drywall, and parking area with retaining wall. Whether as a year-round residence or a weekend escape, this lakefront-adjacent gem is truly one of a kind. Schedule your private showing today-opportunities like this do not last.

Property Images

Property Image 2 Property Image 3 Property Image 4 Property Image 5 Property Image 6 Property Image 7 Property Image 8 Property Image 9 Property Image 10 Property Image 11 Property Image 12 Property Image 13 Property Image 14 Property Image 15 Property Image 16 Property Image 17 Property Image 18 Property Image 19 Property Image 20 Property Image 21 Property Image 22 Property Image 23 Property Image 24 Property Image 25 Property Image 26 Property Image 27 Property Image 28 Property Image 29 Property Image 30 Property Image 31 Property Image 32 Property Image 33 Property Image 34 Property Image 35 Property Image 36 Property Image 37 Property Image 38 Property Image 39 Property Image 40
Agent Photo
Stafford Market Expert
Steve Simos
Broker Logo
Phone: 800-555-0003
Email: george@appzentric.com