motif Luxe International Realty
$349,000
349 Amity Road, Bethany, CT
Property Image
2
Beds
1.00
Baths
1,336
Sq Ft
1.00
Acres

Property Summary

349 Amity, Bethany, CT is a Ranch residence located in Bethany, CT. and is currently offered at $349,000.

349 Amity, Bethany, CT is a 2-bed, 1-bath, 1,336 square foot home built in 1950 , featuring Ranch architecture

This home is within the Bethany school district (Local) with nearby schools including Per Board of Ed.

Pricing Insight: Originally listed at $349,000, the price has since been adjusted by $0 (0%). It has been on the market for approximately 53 days.

Property Overview

MLS #: 24143644

Property Type: Single Family

Architectural Style: Ranch

Year Built: 1950

Neighborhood: N/A

Living Area: 1,336 Sq. Ft.

Lot Size: 1.00 Acres

Construction: Frame

Heating: Hot Water

Price per Sq Ft: $261

Property Description

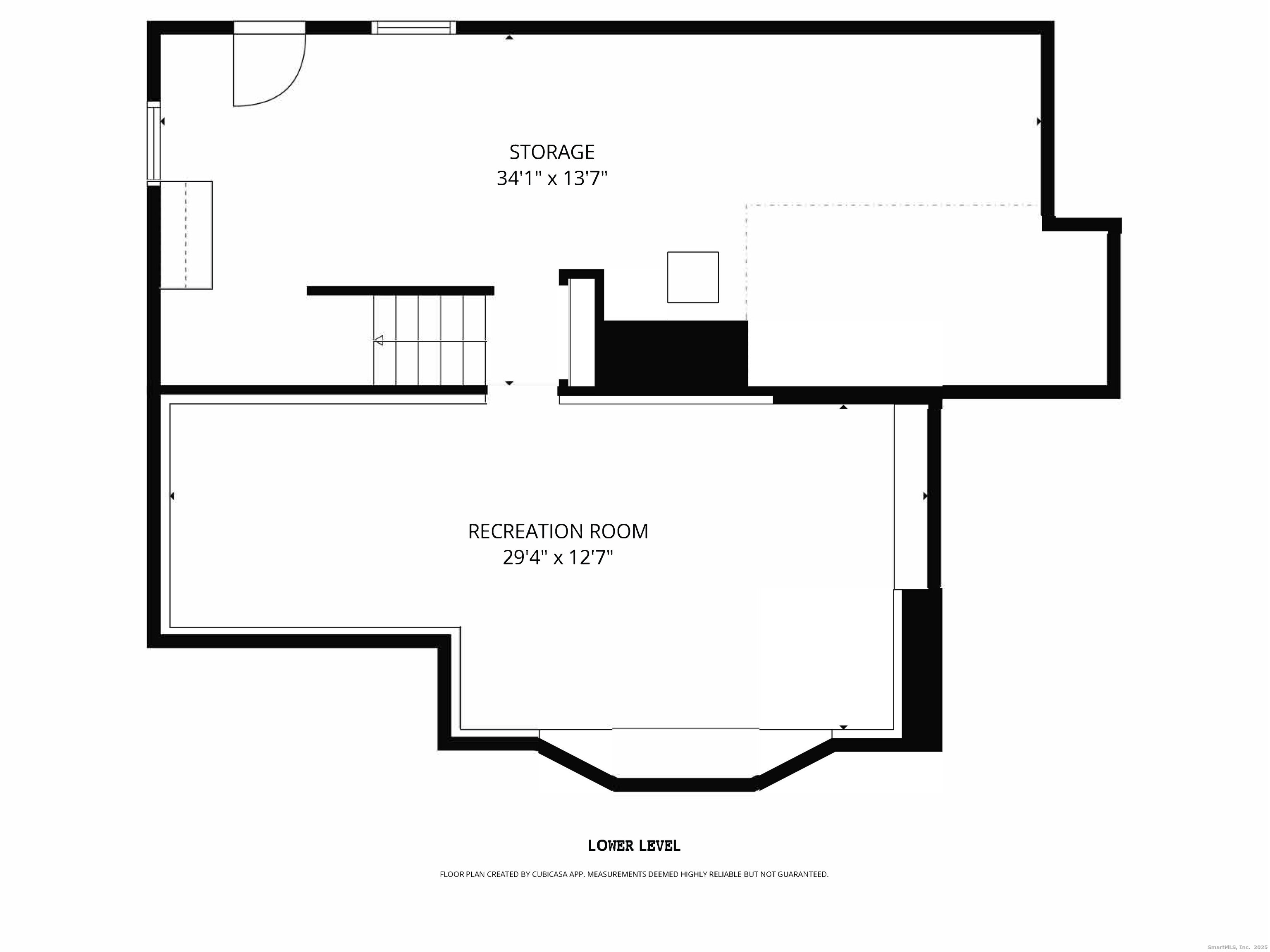
Home for the Holidays? This Bethany ranch home on a full acre level and cleared lot is looking for its next owner to care for it and make it your own! Features of note, hardwood floors, wood fireplace in the large living/dining room, two car attached garage, and a first floor laundry. Minutes to shopping and restaurants. Amity school district, 8 mins to the Merritt Parkway and 10 mins to Route 8. See floor plan in photo section!

Property Images

Property Image 2 Property Image 3 Property Image 4 Property Image 5 Property Image 6 Property Image 7 Property Image 8 Property Image 9 Property Image 10 Property Image 11 Property Image 12 Property Image 13 Property Image 14 Property Image 15 Property Image 16 Property Image 17 Property Image 18 Property Image 19 Property Image 20 Property Image 21
Agent Photo
Bethany Market Expert
Steve Simos
Broker Logo
Phone: 800-555-0003
Email: george@appzentric.com