motif Luxe International Realty
$1,430,000
781 Post Road, Westport, CT
Property Image
2
Beds
3.00
Baths
1,416
Sq Ft
0.00
Acres

Property Summary

781 Post, Westport, CT is a Other residence part of a 13-unit community located in Westport, CT. and is currently offered at $1,430,000.

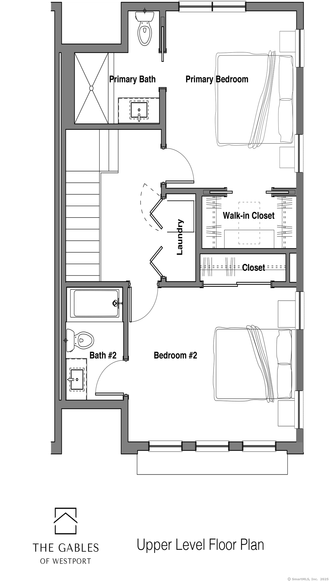
781 Post, Westport, CT is a 2-bed, 3-bath, 1,416 square foot home built in 2025 , featuring Other architecture This home is part of a homeowners association, with dues of $600 paid Monthly. The HOA fee includes: grounds maintenance, trash pickup, snow removal, pest control, road maintenance, and insurance.

This home is within the Westport school district (Local) with nearby schools including Long Lots.

Pricing Insight: Originally listed at $1,430,000, the price has since been adjusted by $0 (0%).

Property Overview

MLS #: 24151662

Property Type: Condo/Co-Op

Architectural Style: Other

Year Built: 2025

Neighborhood: In-Town

Living Area: 1,416 Sq. Ft.

Lot Size: 0.00 Acres

Construction: Frame,Concrete

Heating: Heat Pump,Hot Air,Zoned

Price per Sq Ft: $1,010

Property Description

AMAZING NEW CONSTRUCTION! Located in the heart of Westport, The Gables of Westport presents a collection of eight townhomes and five flats, blending sophisticated design with the ease of in-town living. Enjoy close proximity to Metro-North, major highways, Longshore Club & Park, Compo Beach, Levitt Pavilion, Westport Country Playhouse, fine dining, shopping, and entertainment. Crafted by local renowned builder RPM Home Inc., these residences showcase open floor plans and premium finishes: Bertazzoni appliances, Grohe fixtures, custom cabinetry, quartz and marble countertops, 6" white oak flooring, and elegant trim selections. The main level offers a sun-filled living room, kitchen, dining area, and private terrace framed by expansive Marvin windows and sliding doors. Upstairs, retreat to a luxurious primary suite with spa-like bath and custom walk-in closet, plus an additional guest suite and laundry. Each townhome includes an oversized garage and attic with abundant storage. Set within a private enclave tucked away from Post Road, the community is surrounded by lush native landscaping and green spaces. Elevator option available. HOA estimated at $500-$600/month. Taxes TBD.

Property Images

Property Image 2 Property Image 3 Property Image 4 Property Image 5 Property Image 6 Property Image 7 Property Image 8 Property Image 9 Property Image 10 Property Image 11 Property Image 12 Property Image 13 Property Image 14 Property Image 15 Property Image 16 Property Image 17 Property Image 18 Property Image 19 Property Image 20 Property Image 21 Property Image 22 Property Image 23 Property Image 24 Property Image 25 Property Image 26 Property Image 27 Property Image 28 Property Image 29 Property Image 30 Property Image 31 Property Image 32 Property Image 33 Property Image 34 Property Image 35 Property Image 36 Property Image 37 Property Image 38 Property Image 39 Property Image 40
Agent Photo
Westport Market Expert
Steve Simos
Broker Logo
Phone: 800-555-0003
Email: george@appzentric.com